Пластиковый плинтус при любой геометрии комнаты может полностью скрыть ее деформационные недостатки без ущерба для общего дизайна помещения. Деталями выбора становится лишь цвет, форма и размеры. В зависимости от квадратуры — это может быть тонкий и незаметный плинтус или же акцентирующий на себе декоративный элемент интерьера.
Какого размера должен быть плинтус
Стандартные размеры напольного пластикового плинтуса:
- длина: до 2,5 м, за редким исключением можно найти модели на полметра больше или меньше;
- ширина: от 1,5-2,2 см;
- высота: от 1,5 до 12 см и более.
Наиболее популярны размеры 2,3х6х250 см или 5,5(6,5)х2,2(2,3) см. Лучше отдавать предпочтение плинтусам с кабель-каналами. Некоторые из моделей способны «замаскировать» проводку, диаметром в 1см. Устанавливать их несложно, но зато по квартире не будут разбросаны провода, что особенно небезопасно, если в доме есть малыши или домашние животные.

Плинтус может быть универсальным, то есть подходить под любое напольное покрытие или специальным для ковролинов и линолеумов. Особенности второго типа: наличие Г-образной конструкции, в паз плинтуса вставляется край ковролина, что позволяется визуально сделать планку продолжением пола.


Выбор размеров плинтуса как гармоничного элемента интерьера должен начинаться с представления общего дизайна помещения и типа напольного покрытия. Если комната маленькая или имеет низкие потолки, лучше выбрать узкий и невысокий плинтус (до 4,5 см). И, наоборот, для просторной залы с высокими потолками подбирают массивные плинтуса (от 5 см). Как будет выглядеть плинтус в декоре комнаты можно увидеть на фото.



Размеры плинтуса и материал, из которого он изготовлен, и бренд формируют его цену. Одна планка бюджетной пластиковой модели (5,8х2,2х250 см) с кабель-каналом обойдется в столице от 74,3 руб. Более дорогие: 255, 755 и свыше 1 000 руб. за одно изделие. Деревянные плинтуса обойдутся дороже даже в эконом-сегменте, минимальные цены стартуют от 160 руб. за планку с параметрами 5,8х1,8х260 см. и типом материала МДФ под лаковым покрытием.
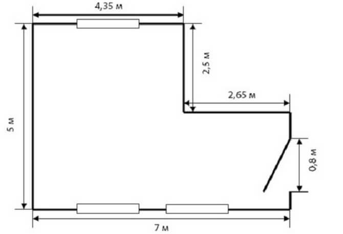
Чтобы подсчитать, сколько плинтуса понадобится, нужно суммировать длину всех стен, вычесть размеры дверных проемов и добавить к длине каждой планки по 5 см. Это необходимо сделать для экономии расхода материала. Схема замеров ниже.

По высоте, рельефности и фактурности плинтуса, необходимо учесть общий дизайн и цветовое решение комнаты. Стоит учесть, чем больше высота плинтусов, тем визуально он будет делать потолок ниже, а пол меньше. Поэтому, если помещение совсем маленькое лучше выбирать планки минимальной высоты в тон напольному или настенному покрытию.
Зачем нужен напольный плинтус и почему выгоднее пластик
В первую очередь плинтусы удерживают напольное покрытие на заданных параметрах, не давая им деформироваться под внешним воздействием. Также они придают комнате завершенный и опрятный вид, скрывая все недостатки геометрии помещения, а также технические детали (проводку различных коммуникаций).

Характеристики напольных плинтусов из пластика, это:
- гладкость поверхности, которая не боится воздействия моющих средств;
- легкость в монтаже и долговечность в эксплуатации;
- отсутствие дополнительной обработки перед установкой;
- стойкость к гниению и коррозии;
- отсутствие негативной реакции на температурные перепады и влажность;
- наличие кабель-каналов для проводов;
- широкая цветовая палитра;
- присутствие резиновых окантовок, которые для плиточных полов просто незаменимы, так как позволяют скрывать неровности и не дают конденсату оседать на стенах.
Пластиковый плинтус намного долговечнее натуральных материалов, а современные модели представлены в таком разнообразии, что несведущий в дизайне человек, даже не отличит, покрытие из чего он видит.

На вид плинтус может полностью имитировать натуральную древесину или плитку, и при этом оставаться ударопрочным пластиком. Немаловажно и то, что такой элемент интерьера обойдется куда дешевле, будет прост в эксплуатации и прослужит куда дольше натуральных материалов.
ПВХ плинтуса изготавливаются из поливинилхорида, применяя экструзию. На выходе получают гибкую, но стойкую к любым видам внешнего воздействия планку.
Читайте также: Монтаж и установка плинтуса с кабель-каналом
